Skip to main content

Archív súťaže
Shortlist nominácií a obhliadky interiérov INAW 2020

Vyhlásenie víťazov INSAID AWARDS 2020

Podpor autorov a zdieľaj na Facebook. Ďakujeme ♥
Výsledky a najlepšie interiéry

Laureáti INSAID AWARDS 2020

Girl in a jacket Privátny interiér

ALAN PREKOP | Byt I O

Autori | Alan Prekop
Foto | Jakub Gulyas, Michal Zelnik
Girl in a jacket Pracovisko

ARCHITEKTI ŠEBO LICHÝ S.R.O. | ERSTE

Autori | Tomáš Šebo, Igor Lichý, Martina Krajmer Matušová
Foto | Martin Žilka
Girl in a jacket Občiansky interiér

LANG BENEDEK ASSOCIATED ARCHITECTS | REKONŠTRUKCIA MULTIFUNKČNEJ SÁLY POD KOSTOLOM DONA BOSCA

Autori | Michal Lang, Borislav Benedek
Foto | Welin Nagyová
Girl in a jacket Horeca

GUTGUT, GRAU | SOHO AU

Autori | Štefan Polakovič, Lukáš Kordík, Andrej Olah
Foto | Juraj Chlpík
Girl in a jacket Obchod

SUCHÁNEK, ARCHITEKTONICKÁ KANCELÁRIA | GASTRO PASÁŽ

Autori | Pavel Suchánek, Ivan Nemeth, Michal Suchánek, Irakli Kakhadze
Foto | Bedrich Schreiber
Girl in a jacket Študent

ATELIÉR PRIESTORU | FÍNSKA SAUNA – SAUNAIRY

Autori | Anna Božiková
Konzultanti | J.Tomaščík, R.Jurčík,M.Bujňaková

Porota

Iľja Skoček ml. – predseda poroty

Ing. arch. Iľja Skoček, ml. je autorom interiérových premien bratislavských reštaurácií, rekonštrukcií paláca Motešických, rekonštrukcie hotela Albrecht a množstva súkromných rezidenčných projektov. Od roku 2018 je externým pedagógom na Katedre architektúry SvF STU v Bratislave. V rokoch 2007 – 2013 a 2017 – 2019 bol členom Predstavenstva Slovenskej komory architektov a od roku 2019 je predsedom Predstavenstva Slovenskej komory architektov.
Dana Mušecová

Akad. arch. Dana Mušecová Študovala architektúru -špecializáciu interiérová tvorba a výstavníctvo u prof. V.Vilhana. Žije a pracuje v Bratislave. Špecializuje sa hlavne na interiérovú tvorbu, návrhy a realizáciu atypických interiérových prvkov. Vo svojom portfóliu má viacero návrhov a realizácií interiérov hotelov, wellness zariadení, kaviarní, administratívnych priestorov, súkromných domov a bytov. Zúčastnila sa viacerých výstav nábytkového designu, v roku 2001 mala samostatnú výstavu originálnych objektov v K Gallery v Bratislave.
Dušan Voštenák

Akademický architekt Dušan Voštenák, 1982 absolvent katedry architektúry na Vysokej škole výtvarných umení v Bratislave u prof. Vojtecha Vilhana. Po ukončení štúdia člen skupiny ŠTÚDIO 85, v roku 1990 majiteľ firmy EMÓCIA DASIGN STUDIO v Žiline, od roku 1990 založil architektonický ateliér EURODESIGN Žilina, držiteľ ceny SKA CE ZA AR 2005 za interiér a CE ZA AR 2010 v kategórii rekonštrukcie. V roku 2011 zamestnaný na Mestskom úrade v Žiline ako vedúci oddelenia architektúry a urbanizmu. Autorské výstavy v PGU Žilina v roku 2004 a 2014. Od roku 2006 je regionálny zástupca SKA v Žiline a od roku 2018 člen Disciplinárneho senátu SKA. Od roku 2010 je organizátor deviatich ročníkov festivalu architektúry „Mesiac architektúry v PGU Žilina“
Miroslav Zikmund

Akad.arch. Miroslav Zikmund absolvoval VŠVU katedra architektúry v roku 1984, je autorizovaný architekt SKA. Venuje sa prevažne rekonštrukciám hotelových a rekreačných objektov, wellness, tvorbe interiérov, televíznej a eventovej scénografii, ako i i výstavníctvu a reklame. Prvky a podnety z jednotlivých disciplín rád premiešava a kombinuje s dôrazom na tvorivý proces všetkých zúčastnených strán.
René Baďura

doc. akad. soch. René Baďura – dizajnér, vysokoškolský pedagóg, autor publikácií, prednášok a článkov o dizajne. Viacnásobný člen alebo aj predseda hodnotiacej komisie na medzinárodnej výstave Nábytok a bývanie v Nitre. V roku 1989 absolvoval študijný program Priemyselný dizajn na VŠVU v Bratislave. Pôsobí na Technickej univerzite vo Zvolene na Katedre dizajnu nábytku a interiéru od roku 1992. Vystavoval doma i v zahraničí, spolupracuje s domácimi i zahraničnými firmami. Má za sebou študijné pobyty, stáže, prednáškové cykly a viedol workshopy v Belgicku, Brazílii, Číne, Fínsku, Nemecku, Španielsku, Veľkej Británii atď.
Tomáš Čechvala

Ing. arch. Tomáš Čechvala absolvoval FA STU v Bratislave v roku 2005. Od roku 2010 sa venuje vlastnej tvorbe a v súčastnosti vedie ateliér známy aj pre tvorbu interiérov pre pracovné prostredie na Slovensku a v zahraničí. Aktuálne získal ateliér cenu v súťaži Office roka v kategórií Inovatívna kancelária.
Zuzana Cambelová

Ing.Arch Zuzana Cambelová, absovovala Fakultu architektúry SVŠT v Bratislave v roku 1985. V roku 1996 založila spoločnosť CADÉ, ktorá sa zaoberá navrhovaním interiérov. V roku 2003 bola nominovaná na cenu Dušana Jurkoviča ako autor hotela Marrols v Bratislave. Špecializuje sa predovšetkým na interiéry hotelov a súkromných rezidencií.
Zuzana Duchová

Zuzana Duchová, kurátorka a publicistka, študovala vedu o výtvarnom umení na FiFUK v Bratislave a Universität Wien, obhájila dizertačnú prácu o kultúrnych mestách na STU v Bratislave. Externá kurátorka zbierky architektúry a nábytku Slovenského múzea dizajnu. Pracuje pre Creative Europe Desk Slovensko, kde sa zaoberá projektovým manažmentom medzinárodných kultúrnych projektov a grantami.
Porota súťaže

Top 10 najlepších interiérov – Hlasovanie verejnosti

INSAID AWARDS 2020 – všetky prihlásené interiéry

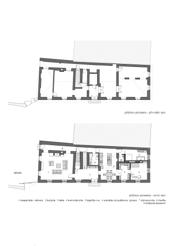
RODINNÝ DOM LEVOČA, REKONŠTRUKCIA | Mesto
Autori | Richard Kráľovič
Spoluautori | Zuzana Kráľovičová
Firma, ateliér | Richard Kráľovič architekti | http://www.rkralovic.com
Foto | Peter Čintalan (DYNAMEETstudio)

Autorský popis | Pôvodne starší dom s úpravami v 19. a 20. storočí, sa nachádza priamo v historickom centre mesta Levoča, “za hradbami”.
"Keď som na začiatku tento dom kúpil, nebol som z neho veľmi nadšený," spomína investor. "Mala to byť skôr rozumná investícia". Posledné využívanie objektu ako jedáleň i zanedbanie údržby sa podpísali pod biednu vizáž; pod ňou sa však ukrývali mnohé hodnotné vrstvy, ktoré sa návrhom a postupnou realizáciou poodhaľovali.
Zadaním bol návrat k pôvodnej obytnej funkcii, zmena dispozičného riešenia, nahradenie nevyužitého pôjdu vstavbou obytného podkrovia s kompletnou výmenou strešnej krovovej konštrukcie a vytvorením nových prvkov - západnej terasy a vikiera na severnej strane, rekonštrukcia fasády a sanácia pivničných múrov s následným odhalením nádherných zaklenutých pivničných priestorov. To všetko s cieľom dať domu opäť dušu a vytvoriť atmosféru pre pulzujúci rodinný život. Predložený návrh sa líšil od majiteľových pôvodných predstáv, no dokázal obslúžiť želané funkcie oveľa lepšie.
Priestory nadobudli veľkorysý charakter a v súlade s integritou pôvodnej historickej stavby majú zmysluplné prepojenie a sú postavené na otvorenom a komunikatívnom princípe . Vstup do domu, umiestnený v jeho strede, nadväzuje na predsieň so schodiskom; ďalej pokračuje cez veľkú obývaciu izbu otočenú do záhrady a chodbu umiestnenú pozdĺž slepého múru susediaceho s vedľajším domom; cez kuchyňu sa vracia spať do predsiene. Na prízemí okrem toho našli svoje miesto ešte dve ďalšie izby a veľká kúpeľňa s netypickou orientáciou priamo do ulice. Podkrovie tvorí privátna zóna – spálňa, dve detské izby a kúpeľňa.
Synergia historického a nového sa prejavila aj v citlivom spracovaní starších, zdanlivo nepotrebných častí. Nové uplatnenie našli zostarnuté drevené hranoly zbúraného krovu, tehly - "pôjdovky" ako dlažba do časti pivnice, či fragment historického nápisu, ktorý bol zabudovaný do steny v kuchyni. Všetko je súčasťou starého príbehu domu, ako architekt zasa týmito úpravami prispievate k jeho pokračujúcej histórii.
Interiérové riešenie je účelné a prívetivé. Jemne zladené akordy farieb doznievajú na dizajnérskych svietidlách; pomyselné srdce domu - kuchyňa si užíva stropné osvetlenie dopadajúce cez svetlík "pretínajúci" podkrovie ako umelecká inštalácia "light artu"; vstavané šatníkové skrine v matnom laku integrujú vo svojom telese obloženie dverí; alebo "prešmyčka živlov", keď sa v nike kuchynskej steny - pôvodne kozub, ocitá miesto ohňa voda v akváriu.
Podobne ako v minulosti sa použili miestne tradičné materiály, všetok nábytok a atypické prvky sú riešené na mieru miestnymi remeselníkmi od masívnych dverí až po detail kľučiek, madiel či kováčskych detailov.

Úžitková plocha 356 m2

Slovenská asociácia interiérových dizajnérov SAID s podporou partnerov a priateľských organizácii vyhlásila prvú slovenskú kategorizovanú súťaž o ceny v interiérovom dizajne. Do súťaže sa prihlásili interiéroví dizajnéri, architekti, umeleci, študenti, investori, výrobcovia ale aj dodávatelia interiérov.
Sledujte nás na sociálnych sieťach
Napíšte nám správu
[contact-form-7 id=“2119″ title=“Nechaj nám správu“]

INSAID AWARDS podporujú títo partneri

Príležitosť pre firmy

Hľadáme fanúšikov a partnerov pre INSAID AWARDS 2020. Ak si myslíte, že vaša značka zapadá do nášho konceptu interiérového dizajnu, stante sa našim partnerom a podporte nás. Ďakujeme. Viac o výhodach v partner kite.

Partneri insaid awards

Na príprave súťaže INSAID AWARDS sa podielali

  • Martina Uhrinova
    Interiérový dizajnér
    KENDU
  • Milan Illes
    Projektový manažér
    KENDU
  • Michal Staško
    Dizajnér
    Staško dizajn
  • Ivan Matuška
    Dizajnér
    TRIFORM FACTORY
  • Miroslav Debnár
    VŠVU, Bratislava
    Katedra dizajnu
  • Michal C. Hronský
    FA STU, Bratislava
    Ústav interiéru a výstavníctva
  • Elena Farkašová
    TUZVO DF, Zvolen
    Katedra dizajnu nábytku a interiéru
  • Ivan Brezovský
    Biznis developer
    Teal rivers
Ďalej spolupracovali
  • Táňa Kollárová
    Dni architektúry a dizajnu, DAAD
  • Táňa Lesajová
    Noiz.sk
  • Vlado Korček
    slovensky.in
  • Michal Hmirák
    BOLD Digital
  • Mária Rišková
    Slovenské centrum dizajnu, SCD
  • Peter Kukučka
    AT26
  • Vašo Kautman
    Katedra dizajnu, VŠVU
  • Adam Rakús
    Studio Mendelssohn
  • Maximilián Cvengroš
    InaAs
  • Branislav Loskot
    AT26
  • Eva Rutová
    Katedra dizajnu, VŠVU
  • Tomáš Beňadik
    Folk
  • Karolina Finková

  • Katarína Beličková
    MEJD

Podpor prácu ľudí, ktorí súťaž INSAID AWARDS pripravili a zdieľaj info na Facebooku. Ďakujeme ♥
Prihlás sa na odber noviniek a maj vždy čerstvé informácie o aktuálnych zmenách alebo výzvach.
Zapoj sa do našich aktivít a tvaruj komunitu interiérových dizajnérov [contact-form-7 id=“444″ title=“Newsletter“] Ďakujeme a tešíme sa na teba.
Na príprave spolupracovali